Болат катушкаларАлюминий, тот баспайтын болат, суық илектелген болат, ыстық илектелген болат, ыстық илектелген болат, кремний болат, кремний болат, силикон болаты және қайта салу сияқты металл материалдарды өңдеңіз. Олар тұтынушының техникалық сипаттамаларына сәйкес келетін тар жолақтарды шығаруға қабілетті. Болат катушкалар тақтайшаларына нарықтық сұраныс ретінде, клиенттердің өндірісінің таразы кеңеюді жалғастыруда, ал әр түрлі жобалар пайда болады, ал әр түрлі жобалар, клиенттердің қажеттіліктерін қанағаттандыру үшін болат катушкалардың әртүрлі түрлері енгізілді. Бұл мақалада болат катушкалар плиталарына егжей-тегжейлі кіріспе бар, болат катушкалар тақтайшаларын тереңірек түсінуді қамтамасыз етеді.
A Болат катушкаларБұл қажетті ені мен ұзындығына және жоғары жылдамдықпен және дәлдігі бар ұзын жолақтарды ашуландыруға және кесуге арналған автоматтандырылған катушкаларды өңдеу жабдықтары. Қазіргі заманғы болаттан жасалған катушкалар, әдетте, жоғары дәлдікті және тиімді өндірістік процестерді оңтайландыру үшін зұлымдық, сырғанау, айналдыру, кері айналдыру, автоматты құралдың өзгеруі және тамақтандыру және жинақтау жүйелерін біріктіреді. Мұрақты инженерлік болаттан жасалған калькулярлы катушкалар, металл өңдеу саласында болат катушкалар плиткалар кеңінен қолданылады және олардың сенімділігі мен тиімділігі үшін танымал.
● Болат катушкалар тақтайшасының негізгі компоненттері
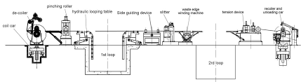
Болаттан жасалған катушкалардан жасалған сызықтар, әдетте, катушкаларды өңдеудің үш негізгі жүйесі кіреді:
Қиындық жүйесі: беттік сапасын жақсарту үшін кең қабықтарды түзейді.
Шлу жүйесі: кең катушканы кесу құралының көмегімен қажетті ені тар жолақтарына кеседі.
Қайта қалпына келтіру жүйесі: кесілген жолақтарды артқа айналдырады және оларды жинақтау құралына жинайды.
Бұл құрылым болат калькулятордың шлангты машиналарына қосымша операциялар немесе басқа әрлеу жабдықтарынсыз көп мөлшерде өнімдер шығарады.
![]() |
![]() |

Жетек → Жетекші → Жетекші → Жетекші → Жетекші → Жетекші → Кесу → Тұндыру көпірі → Диспройка → Скату
3.1 Болат катушкалар тақтасы
Аяқтау кезінде аБолат катушкалар тақтайшасы, Шикізат ағаштан босату жүйесіне катушкалар немесе автоматтандырылған роботты бергіш арқылы беріледі. Бұл жүйе, әдетте, біріккен, кеңейтілген мандрельді дизайнды қолданады және ауыр жүктемелерге жарықпен жұмыс істеуге жарамды. Шығару жүйесі тегіс, беттік жоқ катушканы қамтамасыз етеді.
Декойлер дизайны оған 40-тан 60 см-ге дейін ені бар металл катушкаларды өңдеуге мүмкіндік береді. Үлкен ішкі диаметрі бар материалдар үшін толтырғыш парақтары тиімділікті арттыра алады. Толтырғыш сақиналар кеңінен қолданылады, олар үлкен ішкі диаметрі бар катушкаларды өңдеу үшін қолданылады.
3.2 Болаттан жасалған катушкалардан шығу сызбасы
Слату процесінде металл катушкасы кескіш аймақта салынып, екі параллельді мандрельдермен және мұқият өңделген кескіш кескіш кескіштермен кесіледі. Болаттан жасалған катушкалардан кесудің дәлдігі соңғы өнімнің сапасына тікелей әсер етеді, сондықтан кескіш параметрлерді таңдау және кесу параметрлерін орнату өте маңызды.
Кесу процесінде бірдей маңызды, бұл жиектерді кесу және қалдықтармен өңдеу. Қазіргі заманғы болат катушкалар плиткалары көбінесе резеңке сақиналармен және қалдықтарды өндіріс кезінде тиімді басқару үшін жабдықталған. Қалдық катушка қалдықтарды тиімді жұмыс істеуді қамтамасыз ететін кернеу астында жинайды.
3.3 Болат катушкалар тақтайшасын айналдыру машинасы
Кейбір болаттан жасалған катушкаларда конверсиялау жүйесі, кері профильдер жасау үшін иілу немесе деформацияны қажет ететін катушкаларды өңдеуге арналған. Кері айналдыру жүйесі дайын өнімнің сапасы мен тұрақтылығын қамтамасыз ететін катушкалармен кесілген катушкаларды жинауға мүмкіндік береді.
Болат катушкаларәртүрлі салаларда кеңінен қолданылады, оның ішінде, бірақ олармен шектелмейді:
Автомобиль өндірісіндегі болат калькулятор машинасы: дене құрылымдық бөлшектері мен аксессуарлар өндірісінде қолданылады.
Құрылыс индустриясындағы болат катушкалар желісі: есіктер мен терезе жақтауларына, құрылымдық тіректерге және басқа қосымшаларға арналған металл материалдар ұсынады.
Электрлік құрылғыларды өндіруге арналған болат катушкалар
Үйдегі құрлық индустриясында болат калькулятор машинасы: үй техникасына арналған металл бөлшектер мен құрылымдық тіректерді ұсынады.
Болат катушкалардағы нарықтық сұраныстың артуымен, әр түрлі клиенттердің өндірістік қажеттіліктерін қанағаттандыру үшін болат катушкалардың түрлі жаңа түрлері пайда болды.
![]() |
![]() |